一、 基本原理
爱能森赫爱斯(HSES)近零碳供冷热技术是以储能为自主创新,以“储能+多能互补+智慧能源”为集成创新的技术体系。
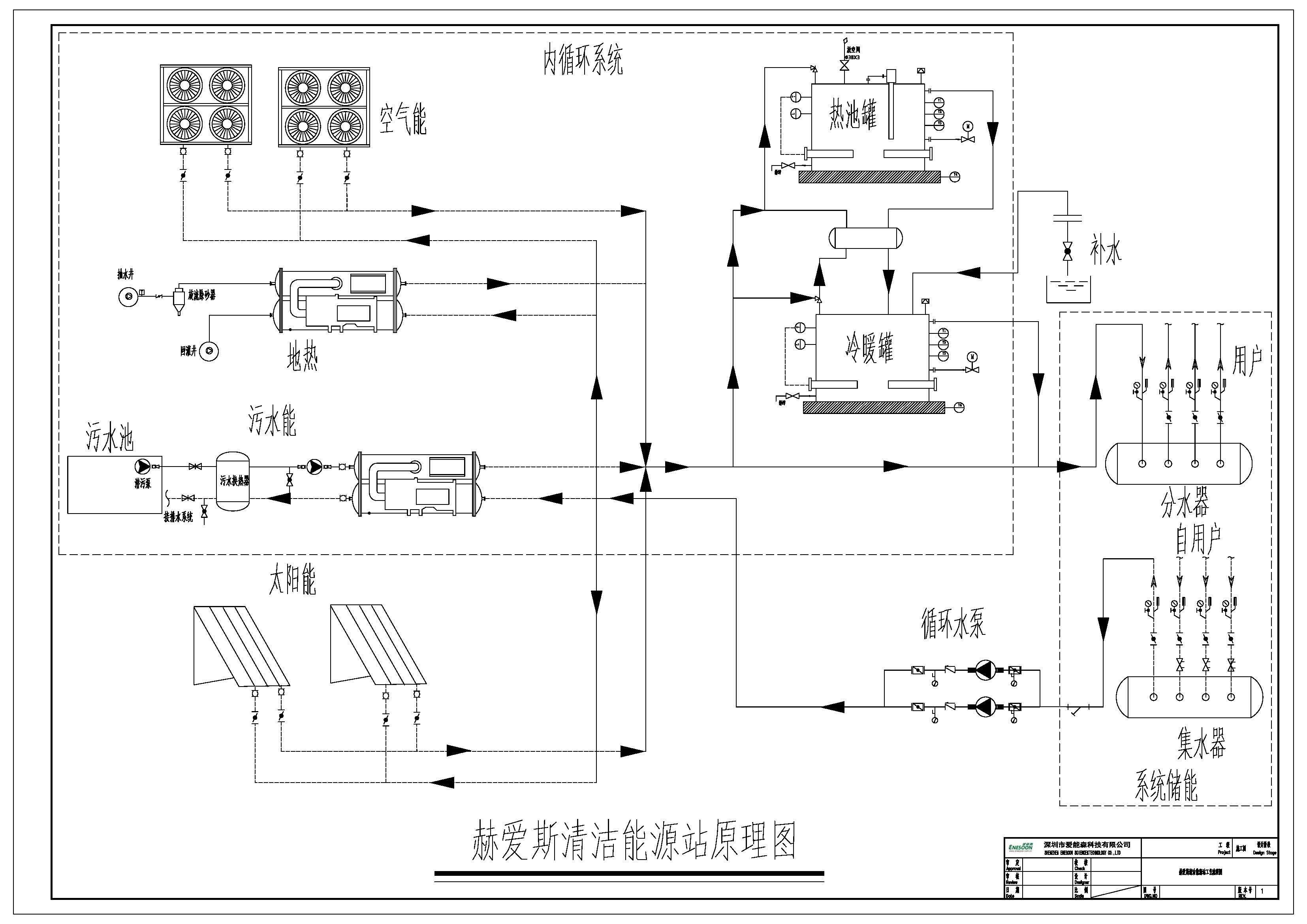
基本原理:以储能技术为核心,通过电力驱动热泵等能源收集设备,因地制宜充分获取空气、水源、污水源、海水源、地源热、余热、太阳能、生物质能、谷电、弃电等各种低品质的能量来源,然后通过自主研发的高效储能系统将能量以热能/冷能的方式存储在热池罐中,在终端用户需要的时候通过换热交换设备加热/制冷循环介质(水),循环介质通过输送管道流入用能末端客户,再通过智慧能源管理系统调配能源站的供给和用户末端需求的平衡,减少能源浪费,同时实现清洁能源站精准、平稳的输送蒸汽、热水、暖气或冷气。
基本原理图:

二、 工艺流程

三、 系统组成(八大子系统)


1. 赫爱斯(HSES)系统的关键——多能互补。
针对项目地的资源禀赋,在保证能源供给安全稳定的基础上,不局限于单一能源选择,选择最合适、最经济的能源作为基础负荷,保证能源供给的充足和经济性,“有效解决单一能源技术方案的痛点”。
2. 赫爱斯(HSES)系统的心脏——储能。
通过储能深度利用谷电,使电网不增容或少增容;同时耦合整套系统,缓冲能源生产端和消费端的供需矛盾,保证系统的稳定性和安全性,并且储能系统可有效调节智能热力系统性能,提高系统效率,由于能源分时价格以及用户用热需求在时空上的变化趋势不一样,通过高效储能系统能够有效缓调节变化趋势,保证系统运行的经济性和用热需。
3. 赫爱斯(HSES)系统的大脑——智慧能源。
按照能源收集、储存、转换、供给,配置智能控制系统灵活的跟踪、分析、调节和控制,实现多种能源之间相互补充和梯级利用;及时优化调控系统输出负荷,降低系统能耗;实时反馈用户室内温度情况,提升用户体验。建立“爱能云”大数据平台,构建互联互通智能“微能源网”;打破“集中生产,被动消费”的传统模式,解决能源消费“末端一公里”问题。

四、 技术创新点及主要技术经济指标
1. 率先提出“热池”理论,创新发明并应用赫爱斯(HSES)系统,成功实践国际领先的“储能+多能互补+智慧能源”清洁能源冷暖站;“热池”相对于“电池”而言,即热量存储装置;也指冷量的存储装置。

2. 自主研发多类型储能技术,开发适用于不同领域的低成本、长寿命、高安全性、高能量密度的储能材料,如骆驼系列显热储热材料、雄狮系列复合相变储能材料,不仅适用于北方清洁供暖,同时适用于南方制冷,及冷链冷库项目等;

3. 自主开发模块化储能成套设备,如板式及列管式骆驼材料储热换热一体化设备、开式及闭式相变材料储热换热一体化设备;解决储热系统在工程上安装问题,大大缩短工程建设时间;整体模块化设计使用,减少工程安装上的不确定因素,保证稳定使用;模块化复制可大量生产。
4. 集成创新,多种能源耦合互补,储能及多能互补系统有效联动运行,提供一种低耗、高效、安全、稳定、平价、精准的储能型多能互补供热制冷综合解决方案,解决了目前存在的供能不稳定、成本高、政府补贴压力大等问题,可替代燃煤、燃油、燃气等传统供能方式,提供老百姓用得起的清洁能源。
5. 利用峰谷电价差,移峰填谷,实现能源时空上的转移,不仅能有效缓解电网高峰缺口、提高谷电期间发电设备利用率,减少碳排放量,还能降低系统运行成本。
6. 技术适应性强,系统供能稳定、安全、经济,能效比高,在2.2-2.5左右。
五、 技术运行全过程能源分析
1. 能源来源上,主要采用谷电弃电,同时收集空气能、太阳能、生物质能等多种形式的清洁能源,不仅比燃气、生物质燃料等成本低,并且节能环保、安全高效,不需要大幅度电力增容、不需要破坏市政设施布设燃气管道,解决了政府关注的燃煤指标控制,绿色环保污染问题,解决了群众反映强烈的道路频繁开挖、重复投资且影响交通等问题。
2. 能源转换上,利用自主研发的显热或复合相变储能材料作为热/冷的载体,将收集的空气能存储在清洁能源热池系统中,在需要的时候平稳释放出来,既可供热,也可制冷。实现了能源的错时互补,高效利用,也解决了政府关注的锅炉安全隐患和能源浪费等问题。
3. 能源运用上,一是城市集中供热,替代原有的燃煤供热锅炉系统,直接接入城市供热管网。二是分布式能源供热供冷,可应用于城市新建小区、镇驻地、村庄、学校、医院、办公场所、酒店等。三是工业园区蒸汽系统,可替代燃煤燃气小锅炉,成本低、零污染,稳定性高。四是农业大棚恒温技术,实现冬季开花结果,发展高附加值农业。解决了城市供热管网运力不足、天然气管道不能覆盖的区域供热问题,解决了农村地区长期依赖的户户烧煤、秸秆取暖等严重污染空气取暖、空气污染指数居高不下的问题。
4. 能源运维上,采取互联网+能源的智慧能源管理模式,通过爱能森自有云平台(简称:爱能云平台),利用智慧能源管理系统对采集的数据进行分析运算后自动调节优化,保障以最低能耗获得最优运行状态,确保运行成本最低。采取网上远程智能监控调节,解决了传统供热管理方式人工成本过高,安全隐患较大,供暖效果不稳定的问题。
六、 技术来源及知识产权概况
爱能森赫爱斯(HSES)近零碳供冷热技术来源于爱能森团队自主研发,核心技术涉及储能新材料、高端智能装备、智慧能源管理及清洁能源热力产品研发、系统规划、方案设计、技术服务、智能运维等多个专业领域。
爱能森重视技术创新,在知识产权保护,在核心产品和技术领域的知识产权投入、产出,拥有量和产业化方面保持行业领先水平,知识产权申请量逐年递增,获国家级高新技术企业、深圳市知名品牌企业和知识产权优势企业认定。截止2021年2月,爱能森知识产权申请780余件,拥有超过190项专利;其中47件国际PCT专利申请,获得4件美国发明专利,2件欧洲发明专利,布局进入欧、美国家,实现国际化战略部署。爱能森开发的赫爱斯(HSES)近零碳供冷热技术已实现了产业化实施。
七、 技术在示范工程应用概况
1. 主要用户和应用场景
爱能森赫爱斯(HSES)近零碳供冷热技术,先进显效,市场应用前景广阔,不仅可以在村、镇、工业园区、商业楼宇等分布式应用,也可以根据辐射范围在城市进行集中式应用。
1) 城镇分布式清洁能源站:提供政府、事业单位、商场、办公写字楼、酒店、住宅楼、医院、学校等需要的暖气、热水、冷气等;
2) 城镇集中供暖/制冷清洁能源站,替代传统燃煤、燃油、燃气锅炉,为城镇居民提供暖气,热水、冷气等;
3) 农村分布式清洁能源站:提供居民生活所需的暖气、冷气、热水等;
4) 大型工业园区清洁能源站:提供工业企业所需的蒸汽、暖气、热水、冷气等,一般多应用于医药、纺织等有热力需求的行业;
5) 分布式供暖/制冷清洁能源站:如高铁站、机场、大数据中心、海岛、边防哨所、西北高寒地区分散居民区、旅游度假区、别墅等。
2. 应用情况
爱能森赫爱斯(HSES)近零碳供冷热技术可为中国的工业、商业和住宅等基础设施提供清洁供热供冷产品及技术解决方案。该技术“不用煤、不用气、少用电、用谷(或弃)电、零污染、零排放”,在没有国家补贴的前提下建设成本和运行成本均与燃煤锅炉供热成本相当。被列入中国环境保护产业协会重点环境保护实用技术及示范工程名录,入选《中国好技术》《广东省节能技术、设备(产品)推荐目录》《山东省能源领域重点技术、产品和设备目录》等。目前,该系统产品已在山东、河北、河南、陕西等地投入运行5年以上。
爱能森已逐步掌握并成功商业化实践的“储能+多能互补+ 智慧能源”赫爱斯(HSES)近零碳供冷热技术。目前,已经签约使用该技术的特许经营供冷热项目面积近5亿平方米,总投资近700亿;辐射全国22个省/直辖市、112个城市、735个县城。该技术全部应用实施后,可服务百姓近2000万人,每年可节约431.4万吨标准煤,减排二氧化碳476.5万吨、减排二氧化硫1.0万吨、减排氮氧化物1.4万吨,助力打赢大气污染防治攻坚战、蓝天保卫战,建设大美中国,共履碳中和责任!